La sociétée productrice qui augmente votre marge

La sociétée productrice qui augmente votre marge

Menu
  • Présentation
    • certificats
    • photo produit posée
  • gammes fenêtres
    • fenetre pvc
      • pvc ckm extrusion 3 joint
      • TROCAL 70 AD POLOGNE
      • KBE 70 AD pologne
      • KBE 88 AD
      • KOMMERLING 88 MD
      • KOMMERLING 76 AD
      • KOMMERLING 76 MD
    • fenêtres aluminium
      • Econoline Aliplast gamme froide
      • Systèmes Triline Aliplast
      • Imperial ou Ecofutural Aliplast
      • Systèmes Superial Aliplast
      • systèmes coulissant aliplast
        • slide plus(sliding) aliplast le moins cher a rupture
        • ultraglide
        • visioglide
        • superglide
        • accordéon panorama accordéon
        • translation ou deportée
    • fenêtres bois
      • 68mm bois
      • 78mm bois
    • fenêtres bois alu uniform
      • 78mm capotage alu
      • 68mm capotage alu
      • bois-alu capotage soudé
    • fenêtres pvc alu capotage
      • kômmerling aluclip 76 ad/ckm extrusion aluclip
      • kômmerling aluclip 76 pro
      • kômmerling aluclip 88 3 joint
  • gammes volet extérieur
    • couleur lame volet
    • motorisation volet
      • somfy
      • simu
      • yooda
      • selve
      • dooya
      • nice
      • aluprof
    • bso
    • volet roulant extérieur
    • volet roulant monobloc beclever
    • Volet battant PVC, ALU, BOIS
    • volet moustiquaire
    • coffre titan
  • porte de garages
    • sectionelle
    • basculante
    • enroulables 77 ou 55
    • latérales coulissante
  • portail pergola
    • PERGOLA POLOGNE
    • modèles portail
    • modeles clotures
    • portail alu est clôtures
    • portail contemporain est clôtures
    • portail pvc est clôtures
  • store banne
    • sans coffre
    • semi coffre
    • coffre intégral
  • porte d’entrée
    • porte d’entre ouvrant caché
    • porte pvc
    • porte alu
  • nous contacter
    • LOGICIEL MENUISERIE PVC
  • partenaires commerciaux
    • demande de devis pvc pologne fenetre

Systèmes Superial Aliplast

superial pologne belgique france

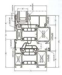
Système à une isolation thermique élevée et à d’excellentes propriétés acoustiques, possibilité de plier les profilés

Construction des profilés – à trois chambres

  • Profondeur de construction – 75 mm (dormant) et 84 mm (vantail)
  • Épaisseur du remplissage – de 14 mm à 61 mm
  • Coefficient de transfert thermique – U < 2,0 W/m2K, groupe de matériaux 1.0 selon DIN 4108

Le profile trois chambres avec une isolation thermique augmentée,  pour les fenêtres, les portes et les vitrines externes.

FENÊTRES EN ALUMINIUM CHAUD

L’utilisation d’une isolation thermique à trois chambres, fabriquée en polyamide enrichie en fibre de verre, augmente la résistance et des propriétés thermiques du profilé. Une protection supplémentaire contre les agents météorologiques est assurée également par l’utilisation d’un joint central et d’un joint de vitre spécial. Le coefficient de transfert de chaleur pour le modèle Superial est : Uf = 1,7 W/m2*K. L’utilisation d’un vitrage approprié, permet d’obtenir les meilleurs paramètres. Le profilé se caractérise également par une très haute isolation acoustique.

Fenêtres au design moderne

Grace au matériau moderne, comme p.ex. matériau métallique, à la palette de couleur RAL infinie, à la finition lisse et structurelle ainsi qu’au large choix de profilés supplémentaires, rendent les portes en aluminium, les fenêtres et les segments à grande surface en verre et aluminium constituent un motif architectonique très tendance.

Les profilés profonds en aluminium

Les profilés Superial ont une profondeur de 75 mm, ctd. 30 mm plus que les profilés standards disponibles sur le marché. Cette solution donne plus de liberté aux architectes en termes de conception ainsi qu’elle est plus confortable pour les poseurs de fenêtre.

Fenêtres en aluminium avec vitrage épais

Le vitrage avec une épaisseur de 14 mm à 61 mm est fixé et scellé dans la feuillure de battante à l’aide des parcloses encadrant la fenêtre en aluminium et des joints d’étanchéité en EPDM.

Fenêtres en arc, cercles, trapèze et triangulaires

Le système de profilés Aliplast permet de réaliser des fenêtres de différentes formes. Nous avons une expérience dans la production des fenêtres en arc, triangle, trapèze et cercle.

Résultat de recherche d'images pour "aliplast superial"

tu comprendras la differences

nous ferons toujours au mieux

disponibilité

devis rapide

demande de devis gratuit

devis@ofo-okna.pl pour france 0677588274   sms appelle WHATSAPP

Pour Pologne idem numéro ou mail

 

ARTICLE FENÊTRE POLOGNE PVC

POURQUOI LES FENETRE DE POLOGNE

 

FENETRE POLOGNE SUR MESURE

 

FENETRE PVC POZNAN

 

ARTICLE POLOGNE FENETRE AEV

partenaire

http://pologne–fenetre.fr/

http://pologne-fenetres.fr/

http://pologne-fenetre.fr/

La sociétée productrice qui augmente votre marge 2026 . Powered by WordPress

WhatsApp us